Дом из остроганного бруса 8 на 9 с мансардой Б-001
до 10 лет
| Гостиная | 22 м2 |
| Холл | 12 м2 |
| Спальня | 10,6 м2 |
| Кухня | 10,6 м2 |
| Санузел | 5 м2 |
| Крыльцо | 3,6 м2 |
| Спальня | 16,2 м2 |
| Спальня | 16,2 м2 |
| Холл | 13,4 м2 |
| Санузел | 2,2 м2 |
Дом из бруса 8х9м с кровлей из металлочерепицы
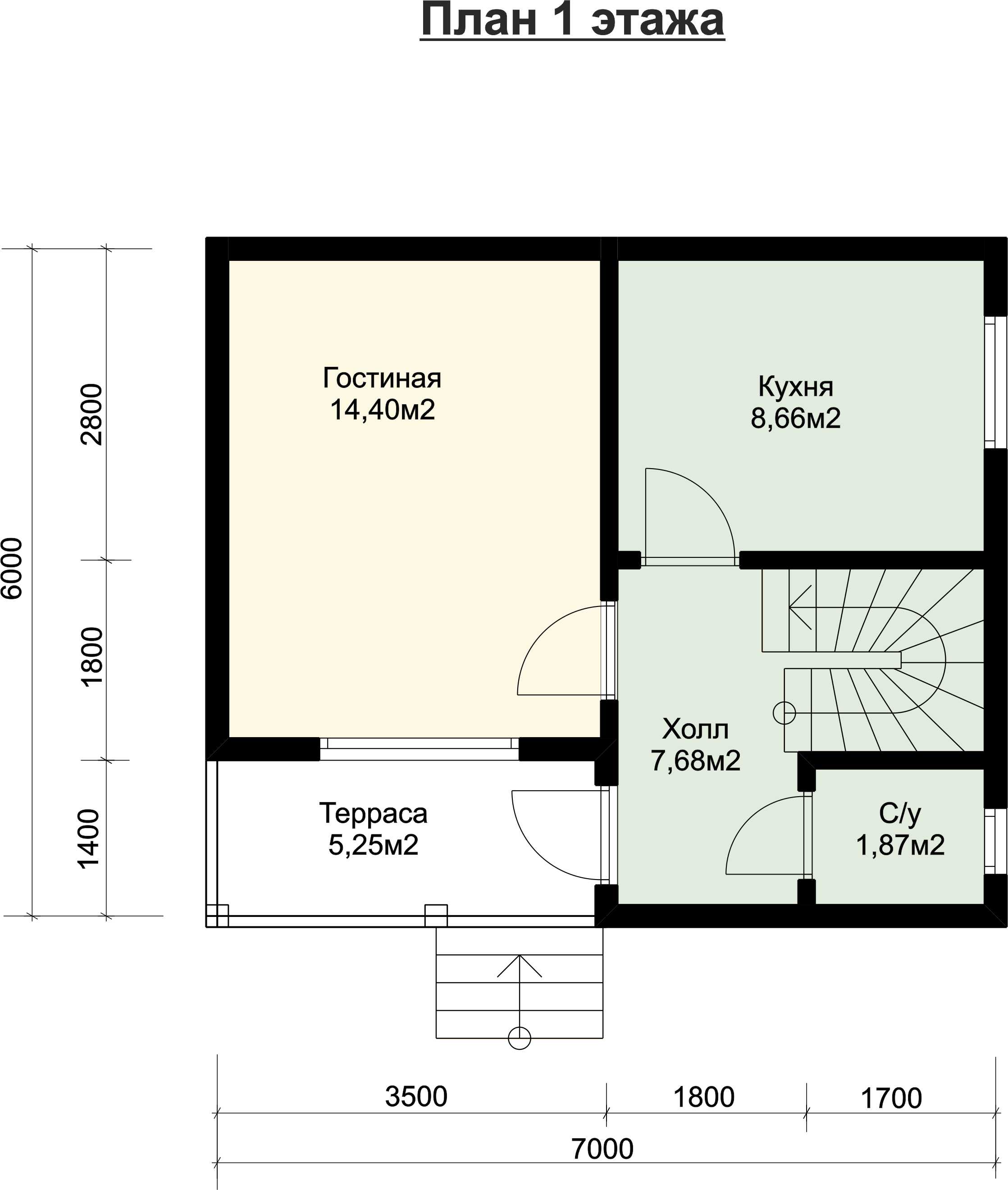
Красивый уютный загородный домик из остроганного бруса 8 на 9 с мансардным этажом с кровлей из металлочерепицы, рассчитанный на проживание небольшой семьи. Грамотная планировка этажей подарит ощущение комфорта и защищенности жильцам. На первом этаже находится большая гостиная, кухня, спальня, санузел и прихожая с выходом на живописное крыльцо. Планировкой второго этажа предусмотрено расположение двух просторных спален, холла и санузла.
Консультация архитектора:
![]() Козырев Сергей Витальевич 8 (495) 766-64-30 (моб)
|
![]() Мещеряков Василий Борисович 8-920-686-10-04
|
Комплектация и цена:
- Фундамент - лента Ж.Б.
- Стены - проф.брус камерной сушки
- Балки пол + потолок
- Стропильная система
- Обрешетка + гидроизоляционная плёнка
- Кровля металлочерепица
- Доставка материала до участка
- Работы по монтажу фундамента и дома
Строительство в кредит:
12-14% годовых
Офиц. зарплата - от 40-50 тыс. руб. для кредита 1500 - 2000 тыс. рублей




