Дом из бруса 7х8 с мансардой и большой гостинной Б-006
до 10 лет
| Гостиная | 22 м2 |
| Холл | 10,2 м2 |
| Кухня | 7,8 м2 |
| Крыльцо | 3,6 м2 |
| Санузел | 3,2 м2 |
| Гардеробная | 2,4 м2 |
| Тамбур | 1,4 м2 |
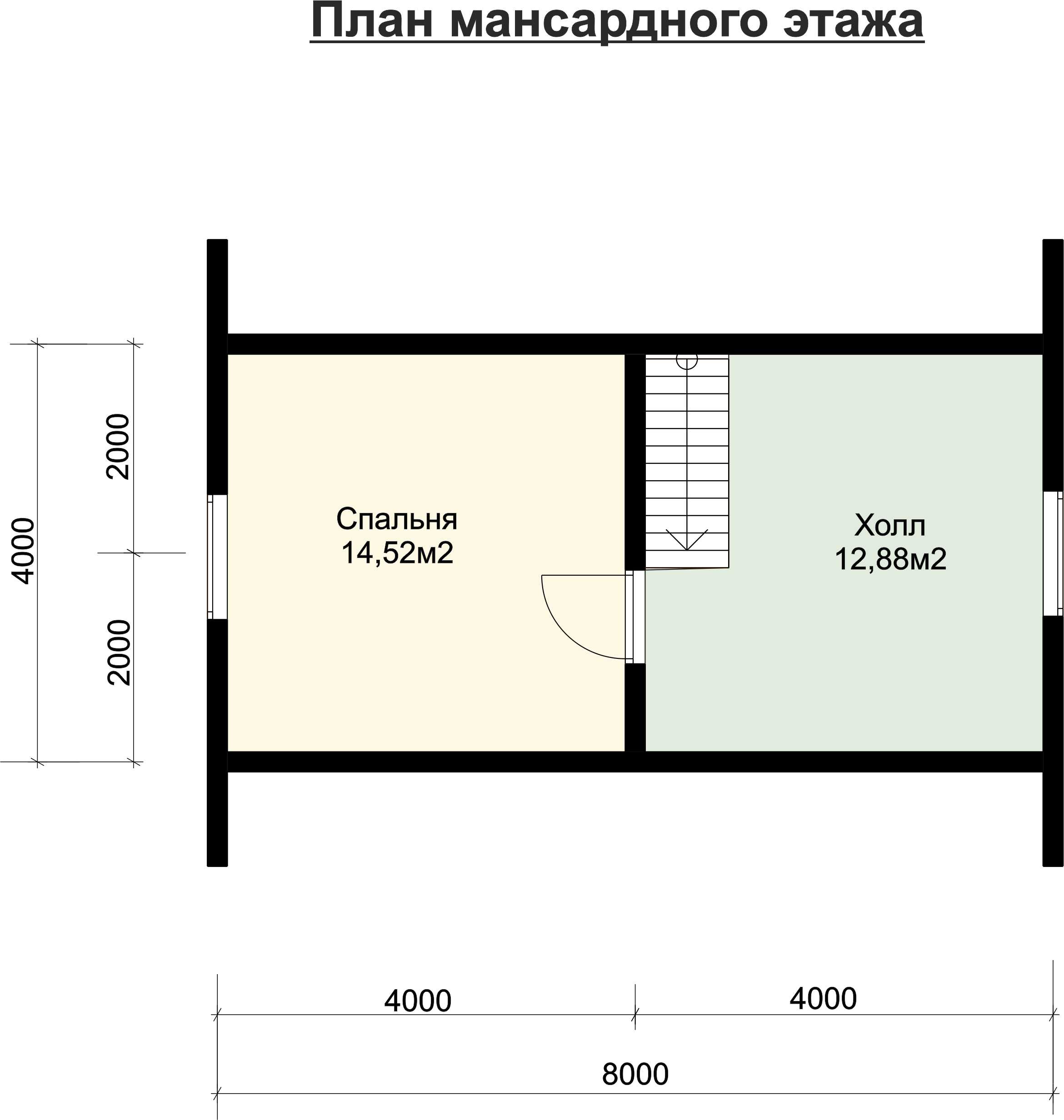
| Холл | 11,2 м2 |
| Спальня | 10,6 м2 |
| Спальня | 10,6 м2 |
| Спальня | 7,8 м2 |
| Санузел | 3,2 м2 |
Дом из бруса 6х9м с большой гостиной
Красивый уютный загородный домик 6 на 9 из бруса с мансардным этажом, большой гостиной, рассчитанный на проживание небольшой семьи. Планировкой первого этажа предусмотрено расположение большой гостиной, просторной и светлой кухни-столовой, гардеробной, холла с выходом на второй этаж. Здесь также находится санузел и тамбур с выходом на крыльцо. Второй этаж состоит из трех больших спален, разделенных просторным холлом и санузлом.
Консультация архитектора:
![]() Козырев Сергей Витальевич 8 (495) 766-64-30 (моб)
|
![]() Мещеряков Василий Борисович 8-920-686-10-04
|
Комплектация и цена:
- Фундамент - лента Ж.Б.
- Стены - проф.брус камерной сушки
- Балки пол + потолок
- Стропильная система
- Обрешетка + гидроизоляционная плёнка
- Кровля металлочерепица
- Доставка материала до участка
- Работы по монтажу фундамента и дома
Строительство в кредит:
12-14% годовых
Офиц. зарплата - от 40-50 тыс. руб. для кредита 1500 - 2000 тыс. рублей




