Дом из бруса с мансардой Б-104
Даем гарантию
до 10 лет
до 10 лет
Работаем без предоплаты
Только русские бригады
Проект в подарок
Внимание! Мы работаем с материнским капиталом!
Описание:
Площадь застройки: 165.00 м2
Общая площадь: 147.00 м2
Экспликация помещений 1-ого этажа:
| Гостиная | 22,50 м2 |
| Терраса | 17,82 м2 |
| Кухня | 9,82 м2 |
| Спальня | 9,73 м2 |
| Холл | 8,37 м2 |
| Крыльцо | 7,01 м2 |
| Санузел | 6,80 м2 |
| Тамбур | 2,08 м2 |
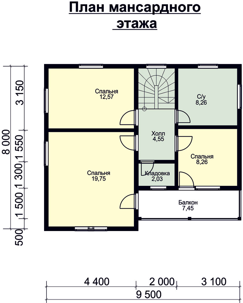
Экспликация помещений мансардного этажа:
| Спальня | 19,75 м2 |
| Спальня | 12,57 м2 |
| Спальня | 8,26 м2 |
| Санузел | 8,26 м2 |
| Балкон | 7,45 м2 |
| Холл | 4,55 м2 |
| Кладовая | 2,03 м2 |
Консультация архитектора:
![]() Козырев Сергей Витальевич 8 (495) 766-64-30 (моб)
|
![]() Мещеряков Василий Борисович 8-920-686-10-04
|
Комплектация и цена:
- Фундамент - лента Ж.Б.
- Стены - проф.брус камерной сушки
- Балки пол + потолок
- Стропильная система
- Обрешетка + гидроизоляционная плёнка
- Кровля металлочерепица
- Доставка материала до участка
- Работы по монтажу фундамента и дома
Итого:
3 465 000
Отправить заявку на расчет сметы
Строительство в кредит:
12-14% годовых
Офиц. зарплата - от 40-50 тыс. руб. для кредита 1500 - 2000 тыс. рублей




