Дом 9.4 на 9.5 из бруса с балконом Б-100
до 10 лет
| Гостиная | 13,6 м2 |
| Кухня | 12,2 м2 |
| Спальня | 9,5 м2 |
| Холл | 8,9 м2 |
| Санузел | 6,7 м2 |
| Терраса | 6,3 м2 |
| Терраса | 5,8 м2 |
| Тамбур | 5,2 м2 |
| Топочная | 5,2 м2 |
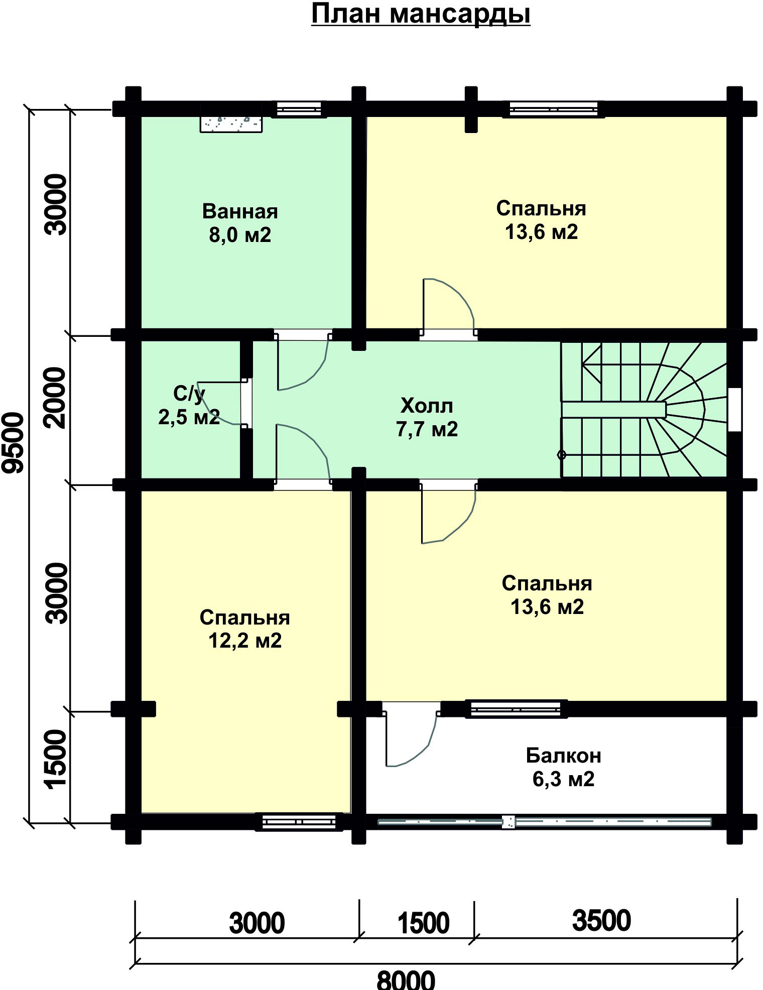
| Спальня | 13,6 м2 |
| Спальня | 13,6 м2 |
| Спальня | 12,2 м2 |
| Ванная | 8 м2 |
| Холл | 7,7 м2 |
| Балкон | 6,3 м2 |
| Санузел | 2,5 м2 |
Дом из профилированного бруса 9,4х9,5м с прогонами и балконом
Большой красивый загородный дом 9.4 / 9.5 с мансардным этажом балконом и прогонами, выполненный из деревянного бруса. Грамотная продуманная планировка этажей предусматривает наличие всех помещений, которые необходимы для комфортного проживания большой семьи. На первом этаже расположены следующие помещения: большая гостиная с выходом на террасу, просторная светлая спальня, кухня-столовая, ванная комната, тамбур, топочная и холл. Мансардный этаж состоит из трех спален, одна из которых выходит на балкон, ванной комнаты, санузла и просторного холла.
Консультация архитектора:
![]() Козырев Сергей Витальевич 8 (495) 766-64-30 (моб)
|
![]() Мещеряков Василий Борисович 8-920-686-10-04
|
Комплектация и цена:
- Фундамент - лента Ж.Б.
- Стены - проф.брус камерной сушки
- Балки пол + потолок
- Стропильная система
- Обрешетка + гидроизоляционная плёнка
- Кровля металлочерепица
- Доставка материала до участка
- Работы по монтажу фундамента и дома
Строительство в кредит:
12-14% годовых
Офиц. зарплата - от 40-50 тыс. руб. для кредита 1500 - 2000 тыс. рублей




